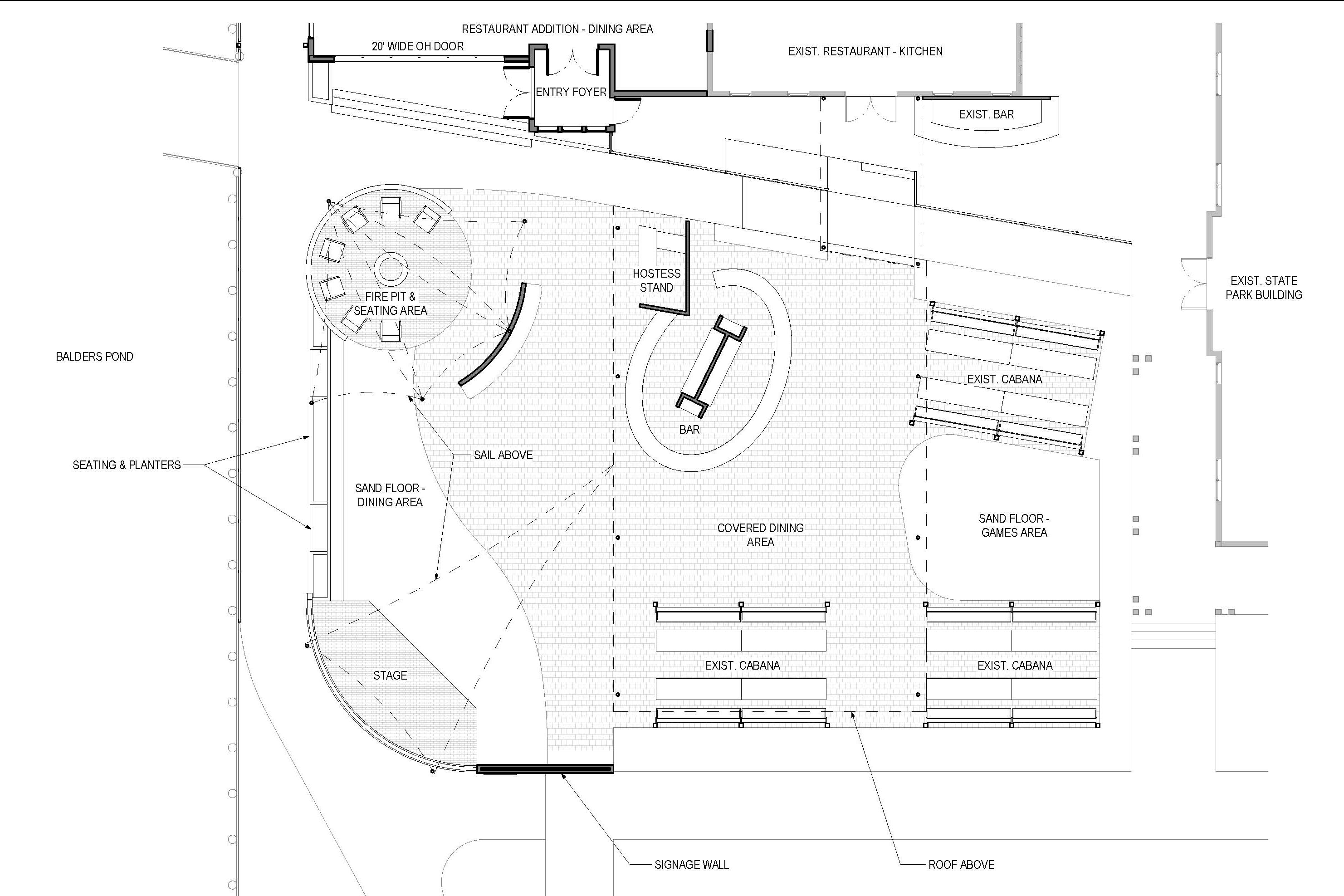
HAMMERHEADS DOCKSIDE Concept plan for the expansion of Hammerheads Dockside, a restaurant at the Indian River Marina in the Delaware Seashore State Park
Copyright © 2023 Design Matters LLC